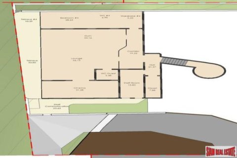
Дом с 5 спальнями в Сураттхани, Таиланд №96982

ID96982
$ 2 951 576
Написать продавцу
Сураттхани
Дом
5
1260 м²
- м²
- фут²
1276 м²
- м²
- фут²
$ 2 951 576
Похожие проекты















