Вилла с 4 спальнями в Пляж Лаян, Таиланд №958

ID958
$ 3 316 168
Написать продавцу
Пляж Лаян
Вилла
4
810 м²
- м²
- фут²
$ 3 316 168
Похожие проекты
-
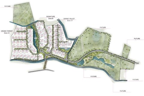
Исключительный проект грандиозных масштабов, который расположен в премиальной локации Подробнее

























