Вилла с 3 спальнями в Героскипу, Кипр №36827

ID36827
$ 1 039 140
Написать продавцу
Героскипу
Вилла
3
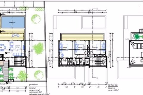
1696 м²
- м²
- фут²
371 м²
- м²
- фут²
$ 1 039 140
История цен
06.09.2025
$ 1 039 140
09.12.2024
$ 981 410
19.10.2024
$ 923 680
11.08.2024
$ 865 950
Похожие проекты
С 13 января 2014 ставка НДС на Кипре составляет 19%. Однако у покупателей есть возможность приобрести новый объект с льготной ставкой НДС в 5% при следующих условиях:
- Если покупка совершается на физическое лицо, а не на юридическое.
- Покупатель не собирается сдавать приобретённый объект в аренду.
- Это будет основная резиденция на Кипре для покупателя и у него нет другой недвижимости на Кипре, приобретённой в течение последних десяти лет с льготной ставкой НДС.
















