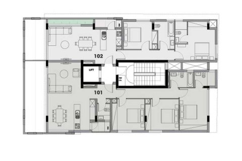
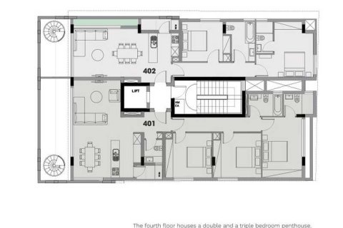
Квартира с 3 спальнями в Лимассол, Кипр №84509
Похожие проекты
С 13 января 2014 ставка НДС на Кипре составляет 19%. Однако у покупателей есть возможность приобрести новый объект с льготной ставкой НДС в 5% при следующих условиях:
- Если покупка совершается на физическое лицо, а не на юридическое.
- Покупатель не собирается сдавать приобретённый объект в аренду.
- Это будет основная резиденция на Кипре для покупателя и у него нет другой недвижимости на Кипре, приобретённой в течение последних десяти лет с льготной ставкой НДС.





















