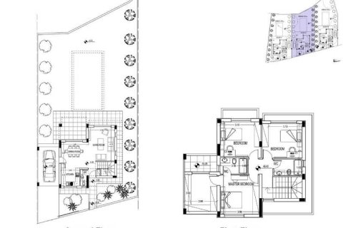
Дом с 3 спальнями в Агиос Тихонас, Кипр №76010

ID76010
$ 837 085
Написать продавцу
Агиос Тихонас
Дом
3
138 м²
- м²
- фут²
384 м²
- м²
- фут²
$ 837 085
Похожие проекты
-
Продажа Коттедж 138 m² на Кассандре (Халкидики) Подробнее









