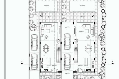
Вилла с 4 спальнями в Лимассол, Кипр №70035
Лимассол
Вилла
4
184 м²
- м²
- фут²
300 м²
- м²
- фут²
$ 710 079
История цен
06.09.2025
$ 710 079
06.11.2024
$ 640 803
Похожие проекты














