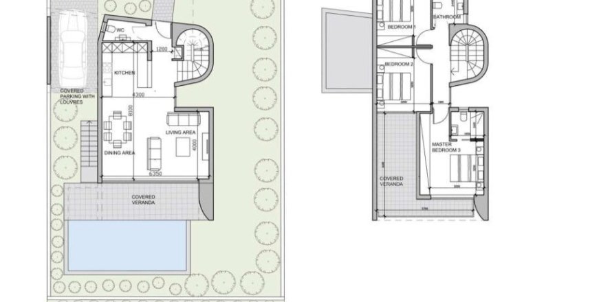
Дом с 3 спальнями в Киссонерга, Кипр №37277

ID37277
$ 904 170
Написать продавцу
Киссонерга
Дом
3
173 м²
- м²
- фут²
$ 904 170
Похожие проекты
-
Продажа Коттедж 173 m² в пригороде Салоник Подробнее


















