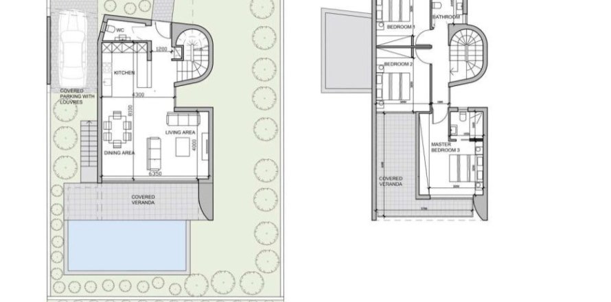
Дом с 3 спальнями в Киссонерга, Кипр №37238

ID37238
$ 850 937
Написать продавцу
Киссонерга
Дом
3
167 м²
- м²
- фут²
$ 850 937
Похожие проекты
-
Продажа Коттедж 167 m² в пригороде Салоник Подробнее



















