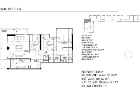
Квартира с 3 спальнями в Стамбул, Турция №11468

ID11468
$ 437 000
Написать продавцу
Стамбул
Квартира
3
143 м²
- м²
- фут²
IV квартал, 2023
$ 437 000
Продавец
Анастасия Акай
Руководитель операционного отдела
Похожие проекты




























