Мезонет с 4 спальнями в Тасос, Греция №109353

ID109353
$ 606 165
Описание объекта
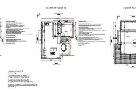
Продается таунхаус площадью 151 кв.м на острове Тасос на стадии строительства. Таyнхаус расположен на 3 уровнях. Первый этаж состоит из одной спальной комнаты, гостиной с кухней, одной столовой, одной ванной комнаты.Второй этаж состоит из одной спальной комнаты, одной душевой комнаты.
Мансардный этаж состоит из 2 спальных комнат, одной душевой комнаты.
Таунхаус имеет угловое расположение. Из окон открывается великолепный вид на море, на горы, на город, на лес. У объекта есть солнечные батареи для нагрева воды, кондиционер. К недвижимости относится парковочное место, сад.
Написать продавцу
Тасос
Мезонет
4
151 м²
- м²
- фут²
1728 м²
- м²
- фут²
30 м
IV квартал, 2026
$ 606 165
Похожие проекты








