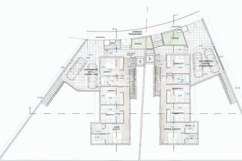
5 dormitorios House en Palodeia, Cyprus No. 63514

ID63514
$ 865 950
Contactar con el vendedor
Palodeia
House
5
195 m²
- m²
- Pies cuadrados
395 m²
- m²
- Pies cuadrados
$ 865 950
Ofertas similares















