4 dormitorios Villa en Fuengirola, Spain No. 26647

ID26647
$ 1 500 980
Características
Seguridad
- Sistema Smart Home
Puertas y ventanas
- Lugares preparados para instalar persianas
Instalaciones interiores
Instalaciones adicionales
- Lavandería
- Almacén
Spa, piscina, etc.
- Baño turco
- Centro de SPA
Contactar con el vendedor
Fuengirola
Villa
4
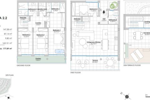
162 m²
- m²
- Pies cuadrados
I barrio, 2027
$ 1 500 980
Ofertas similares



















