3 bedrooms Apartment in Panama City, Panama No. 109771

ID109771
$ 225 000
Property description
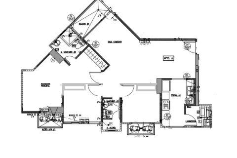
New apartment located at the highest point of Hato Pintado in the city center on a cul-de-sac, a few meters from 12 de Octubre Street, the Metro station, and numerous businesses such as El Rey Supermarket, Arrocha, Smart Fit, and Do It Center. The project features visitor parking, a luxurious lobby, a children's play area, a pet park, a gym, a party room, and a beautiful pool with city views. The apartment features a kitchen, living/dining room, balcony, laundry room, three bedrooms, two full bathrooms, lamps, roller shades, appliances, Panasonic inverter air conditioners, two parking spaces on levels E200 No. 4 and No. 11, and a storage room on level E200 - No. 208. It is ready for immediate occupancy with electricity already installed.Features
Balcony
- Balcony
Equipment and Appliances
- Air Conditioners
- Electric water heater
- Pressure and water tanks
Contact the seller
Panama City
Apartment
3
102 m²
- m²
- sq. ft
IV quarter, 2021
$ 225 000
Similar offers























