3 bedrooms Apartment in Panama City, Panama No. 109763

ID109763
$ 225 000
Property description
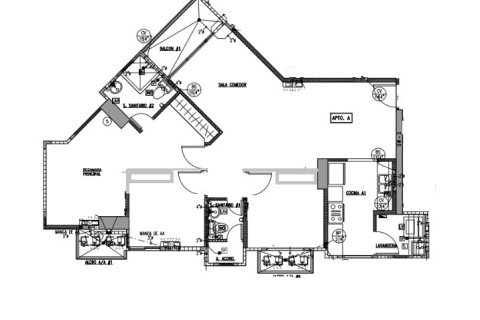
New apartment located at the highest point of Hato Pintado in the city center on a cul-de-sac, a few meters from 12 de Octubre Avenue, the Metro station, and numerous businesses such as Arrocha, Smart Fit, El Rey Supermarket, and Do It Center. The project features visitor parking, a luxurious lobby, a gym, a party room, a children's play area, a pet park, and a beautiful pool with city views. The apartment features an open kitchen, living/dining room, balcony, laundry room, three bedrooms, two full bathrooms, light fixtures, roller shades, appliances, Panasonic inverter air conditioners, and a parking space for two cars and storage unit on level E100. It is ready for immediate occupancy with its electricity installed.Features
Balcony
- Balcony
Equipment and Appliances
- Air Conditioners
- Electric water heater
- Pressure and water tanks
Contact the seller
Panama City
Apartment
3
102 m²
- m²
- sq. ft
IV quarter, 2021
$ 225 000
Similar offers



























