150m² Commercial property in Chiang Mai, Thailand No. 97873

ID97873
$ 768 640
Property description
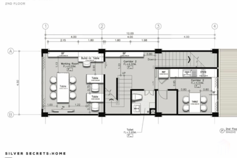
Commercial for sale in Suthep, Chiang MaiCommercial building 3storey for sale with floor plan renovated design, good location in the middle Nimmanheamin Road and One Nimman, The frontage of the building is 4.5 meters wide and extends to a depth of 12 meters, ideal for various businesses such as hotels, shops, or cafes, conveniently located near Maya mall and Chiang Mai University, just a 10inute to Chiang Mai International Airport, surrounded by numerous amenities, shops, and restaurants.Location/ Nearby https//maps.app.goo.gl/jukLVV8Hce9Pf Please made appointment 1 day in advance to visit the house 2 minutes to Maya mall 5 minutes to Kad Na Mo, Chiang Mai University. 7 minutes to Maharaj Nakorn Chiang Mai Hospital. 11 minutes to Central Airport, Chiang Mai Airport Living area around 150 sq.m. Land size 54 Sq.w.. (Total 216 sq.m.) Furniture Partially provided Electrical appliance Partially providedSpecial price THB 25,000,000 All transfer fees 50/50 More information please feel free to contact us.Contact the seller
Chiang Mai
Commercial property
150 m²
- m²
- sq. ft
$ 768 640
Similar offers
-
For Sale Commercial property 155 m² in Athens Details














