358522m² Land in Indaiatuba, Brazil No. 62396

ID62396
$ 21 671 837
Property description
Excellent Plot of land for sale in Indaiatuba Sao Paulo BrazilEsales Property ID: es5553857
Property Location
Engenheiro Ermenio de Oliveira Penteado Highway (SP-75) Km 46.5
Indaiatuba
São Paulo
13347600
Brazil
Property Details
Here we present an excellent plot of land in one of the most sought after areas for development right now in Brazil.
This property is located at the Highway SP 75, on km 46, in the city of Indaiatuba, near Campinas and in proximity to Viracopos International Airport, São Paulo, Brazil.
It is situated in a highly industrialized area, with several companies and logistics providers in the vicinity (for example the Rumo Logistics Railway Line, General Motors, Toyota, Unilever, Mann Filter, SEW Eurodrive, among others).
There is a direct access to the highway and quick and easy access to major highways in the state.
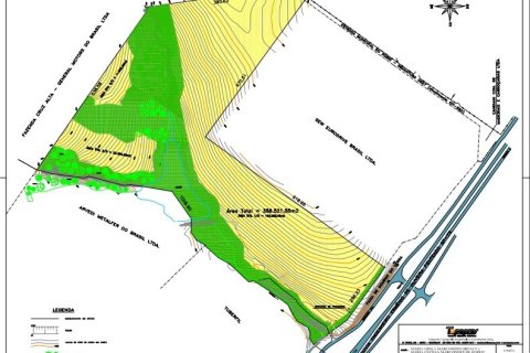
The land is suitable for commercial use (as well as industry and logistics) It is registered as industrial zone, part of the Plano Diretor ZI1-01. The topography is mainly flat
About the Area
Indaiatuba is a municipality in the state of São Paulo in Brazil. It is part of the Metropolitan Region of Campinas. The population is 256,223 in an area of 311.5 km2. The elevation is 624 m. The city’s name derives from the Tupi language. It is an important city in one of Brazil’s main industrial regions.
Indaiatuba ranks number one of the Top 100 best cities to live in Brazil. It is part of the metropolitan area of Campinas with approximately 1.150.000 inhabitants. It is a very prosperous city with numerous industrial parks and high economic potential.
The region around Campinas is developping infrastructurally:
https://www.investe.sp.gov.br/noticia/regiao-de-campinas-lidera-investimentos-anunciados-no-estado-de-sp
The nearby airport Viracopos (Campinas) is gaining progressively in importance, thus upvaluing the entire region:
https://www.viracopos.com/pt_br/noticias/viracopos-supera-1-37-o-volume-de-carga-recorde-do-mesmo-periodo-do-ano-passado.htm
The state of São Paulo – Brazil’s largest (pop. 42 million), most economically diverse, and wealthiest – includes a little bit of everything, from the smoky industries of São Paulo city, to beach resorts that rival Rio; from a string of pleasing mountain resorts, to a fertile farming area that is the most productive in Brazil.
The most striking element of São Paulo’s modern development has been its speed. During the first three and a half centuries of recorded Brazilian history (1500–1850), São Paulo was a backwater, home to a few mixed-race traders and pioneers. Today, the state of São Paulo is Brazil’s economic powerhouse and as such provides one-third of the country’s GNP.
On the coast the average temperature is about 68 °F (20 °C), and the annual precipitation is about 79 inches (2,007 mm); on the plateau the average temperature varies between about 64 and 68 °F (18 and 20 °C), and in the mountainous areas annual precipitation reaches 59 inches (1,500 mm). The lower third of the state is crossed by the Tropic of Capricorn, and the weather in general is mild and healthful. The coastal zone has a hot climate and heavy rainfall. On the plateau rainfall is ample as well, but diurnal temperatures are lower because of increased elevation.
Main Features
• 358522 m2 of land for development
• Excellent location close to many amenities
• Stunning views.
• Huge Potential in the rental market if developed on.
Contact us today to buy or sell your property in Brazil fast online.
Contact the seller
Indaiatuba
Land
358522 m²
- m²
- sq. ft
$ 21 671 837
Similar offers
-
Killini. Seaside land of 180.000sqm, out of village plans, flat, corner, buildable, first line from the sandy beach, with a 500 meters frontage, idea for tourist investment. The plot is just 7 min... Details
-
Opportunity for investors! Vast plot in the heart of a Smart City ideal for property development Details
-
Professional plot 8.000sqms in Zakynthos, within a city plan, for sale. The plot is located in a tourist area of the island and is just 350 meters far away from the beach. It has got frontage to 2... Details
-
Kyllini, Kastro, Ilias perfecture. Seafront area of 150,000 sqm premium, buildable, out of the village plans, suitable for tourism development, building capacity of 30 000 sqm, located in a unique and... Details




















