801m² Land in Estepona, Spain No. 89890

ID89890
$ 2 701 763
Property description
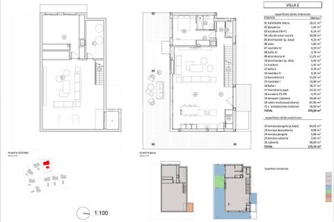
Lands with Villa Construction Licenses Near the Beach in EsteponaThe project offers 8 urban lands, each with +800 sqm of space. The lands have a building license for the construction of villas with private gardens and swimming pools. The villas will feature up to 300 sqm of interior space including 2 floors and the basement.
The lands are located in Estepona, Málaga. Estepona is a popular destination near the Costa del Sol beaches. Estepona blends its Mediterranean atmosphere with modern-day amenities. It has beautiful beaches, a vibrant daily life, and outdoor activity options. It features a year-long sunshine and a peaceful environment, attracting worldwide property buyers.
The lands for sale in Estepona are surrounded by a lush green environment. They are located 1.5 km from the sea and a few minutes drive from La Resina Golf & Country Club. Also, they are 8 km from Estepona center, 12 km from the Puerto Banus in Marbella, and 60 km from Málaga International Airport. AGP-0894
Contact the seller
Estepona
Land
801 m²
- m²
- sq. ft
$ 2 701 763
Price history
05.03.2026
$ 2 701 763
24.06.2025
$ 3 602 351
Similar offers
















