4 bedrooms Apartment in Mesa Geitonia, Cyprus No. 81807

ID81807
$ 727 398
Property description
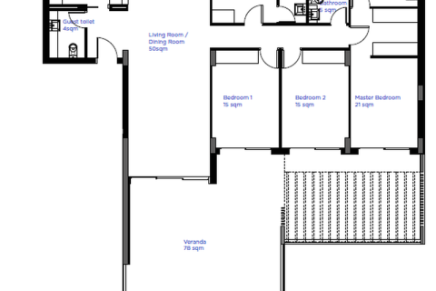
For sale ( 1 minute from Grammar School) is a stunning apartment in the desirable area of Panthea, located on the fourth floor of a well-maintained five-story building with an elevator. This modern property boasts an expansive internal space of 145 m2, featuring four spacious bedrooms and a well-appointed bathroom.Built in 2019, this fully furnished apartment offers an energy efficiency rating of A+, ensuring low energy costs and comfort year-round. The central air conditioning system provides climate control at ease. Enjoy beautiful views from your windows, with panoramic sights of the city, countryside, and sea.
The apartment is part of a gated complex, giving residents added security and peace of mind. You'll have access to a communal swimming pool, perfect for sunny days and relaxation. The location provides convenient access to the highway, making commuting easy, while being close to various amenities such as shops and dining options.
This apartment offers a perfect blend of comfort, style, and convenience in a vibrant community.
Don't miss this opportunity—contact Kazo Real Estate today to schedule a viewing!
Reference number: 25467
Property area: 223 m2
Type: Apartment
Floor: 4th
Parking: Covered
Condition: Resale
Furnishing: Fully Furnished
Included: Pool, Garden, Elevator, Balcony, Storage room
Air conditioning: Full, all rooms
Construction year: 2019
Energy Efficiency: A
Bedrooms: 4
Square meter price: €2.825 /m2
Bathrooms: 4:
Reference number: 25467
Property area: 223 m2
Type: Apartment
Floor: 4th
Parking: Covered
Condition: Resale
Furnishing: Fully Furnished
Included: Pool, Garden, Elevator, Balcony, Storage room
Air conditioning: Full, all rooms
Construction year: 2019
Energy Efficiency: A
Bedrooms: 4
Square meter price: €2.825 /m2
Bathrooms: 4:
Contact the seller
Mesa Geitonia
Apartment
4
223 m²
- m²
- sq. ft
IV quarter, 2019
$ 727 398
Similar offers
-
Apartments for sale are situated in Bostancı, Trabzon. Bostancı attracts the attention of investors with new residential projects, nature, and developing infrastructure. Details














