4 bedrooms House in Palodeia, Cyprus No. 73344

ID73344
$ 1 385 520
Property description
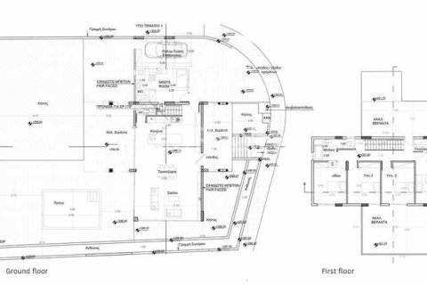
Introducing this exceptional 4-bedroom villa located in the peaceful retreat of Palodeia village, Limassol. Just 25 minutes from Limassol city center and a 5-minute drive from the highway, this property is perfect for those seeking a stylish and luxurious home or a prime investment opportunity. With high-quality finishes throughout, the villa combines elegance and functionality, offering a serene yet convenient lifestyle. The property features a private swimming pool and a spacious garden, creating a tranquil setting for relaxation and outdoor enjoyment.The ground floor boasts a bright and spacious living and dining area, seamlessly connected to a modern kitchen, providing a warm and functional layout for daily living. This level also includes a guest WC and an en-suite maid's room for added convenience.
Upstairs, the villa offers three generously sized bedrooms, including a master suite with an en-suite bathroom and walk-in closet. Additionally, there is a separate bathroom and a dedicated office space, ensuring comfort and practicality for residents.
Contact us today to schedule a viewing!
Reference number: 1763
Property area: 210 m2
Type: Detached house
Parking: Covered
Condition: Brand new
Plot area: 595 m2
Included: Pool, Storage room, Garden, Alarm, Balcony
Online viewing: Νο
Air conditioning: Full, all rooms
Energy Efficiency: A
Bedrooms: 4
Square meter price: €5.714 /m2
Bathrooms: 4:
Contact the seller
Similar offers
-
This exclusive development is situated in an affluent neighborhood, in the most prestigious district of Paphos. Is in the beautiful outskirts of Chloraka, Paphos. A stunning 4-bedroom villa for resale... Details
-
Charming 1970s chalet, perfectly maintained, with a total surface area of approx. 210 sq.m. it is nestled in the heights of the village of Saint-Gervais Mont-Blanc and enjoys a panoramic, commanding... Details
-
Charming 1970s chalet, perfectly maintained, with a total surface area of approx. 210 sq.m. it is nestled in the heights of the village of Saint-Gervais Mont-Blanc and enjoys a panoramic, commanding... Details
-
pon entering Villa Summer Breeze, you'll immediately be impressed by the interior space and light created by its open plan design. The fully fitted kitchen has a separate food preparation... Details
From January 13, 2014 the VAT rate in Cyprus is 19%. However, buyers can purchase a new property with a reduced VAT rate of 5% under the following conditions:
- The purchase is made by an individual, not a legal entity.
- The buyer is not going to rent out the acquired property.
- This will be a primary residence in Cyprus for the buyer, and they do not have any other property in Cyprus acquired with the reduced VAT rate within the last 10 years.









