5 bedrooms House in Agios Athanasios, Cyprus No. 62604

ID62604
$ 917 907
Property description
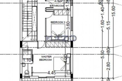
For sale five-bedroom detached houses for sale in Agios Athanasios area.The property is situated on a plot of 242 square meters and offers a covered area of 263 square meters. In the basement of this lovely detached house, there is an open plan kitchen, dining, and living room area, a toilet with a shower, a storage room, and a bedroom. In addition, on the ground floor, there is an open-plan layout dining, kitchen, and living area, one guest toilet, covered verandas, and a large garden area, while on the first floor the residents will find one master bedroom with an en-suite shower and a covered balcony, three additional bedrooms, one toilet with a shower, and a laundry area. As a plus, the property comes with a solar panel water system, double-glazed windows for sound insulation, two parking spaces (covered and uncovered), and an A-class energy performance.
This magnificent five-bedroom house will be developed in the Agios Athanasios area, in a calm and family-friendly neighborhood.
Close to the house, there are all types of services and amenities, ranging from supermarkets, pharmacies, public and private schools (Foley's, Grammar), retail store, restaurants, kindergartens, and much more. Also, within 20 minutes of driving distance, the residents can travel to Limassol Marina, Old Town, and the beachfront, while in just 5 minutes there is the Motorway.
Contact Kazo Real Estates to learn more about the available five-bedroom houses and their unique specifications (facilities, square meters).
For more information about this astonishing sales offer, Book a Viewing Form or contact our Sales Department!
Reference number: SR19622
Property area: 263 m2
Type: Detached house
Parking: Uncovered
Condition: Under construction
Plot area: 332 m2
Furnishing: Unfurnished
Postal code: 4105
Construction year: 2023
Online viewing: Νο
Air conditioning: No
Energy Efficiency: A
Bedrooms: 5
Square meter price: €3.023 /m2
Bathrooms: 1:
Contact Kazo Real Estates to learn more about the available five-bedroom houses and their unique specifications (facilities, square meters).
For more information about this astonishing sales offer, Book a Viewing Form or contact our Sales Department!
Reference number: SR19622
Property area: 263 m2
Type: Detached house
Parking: Uncovered
Condition: Under construction
Plot area: 332 m2
Furnishing: Unfurnished
Postal code: 4105
Construction year: 2023
Online viewing: Νο
Air conditioning: No
Energy Efficiency: A
Bedrooms: 5
Square meter price: €3.023 /m2
Bathrooms: 1:
Contact the seller
Agios Athanasios
House
5
263 m²
- m²
- sq. ft
332 m²
- m²
- sq. ft
IV quarter, 2023
$ 917 907
Price history
30.11.2024
$ 917 907
30.10.2024
$ 796 674
15.10.2024
$ 738 944
Similar offers
-
These remarkable detached homes are located within a residential complex just a 10-minute drive from Limassol's city center, nestled in the upscale area of Agios Athanasios. Positioned in close... Details
-
Reference ID: #SA28301Price details: €690,000 +VATThe project consists of six detached luxury villas located in Panthea, Limassol.This modern residential complex is a wonderful place to live, for all... Details
-
Introducing a luxurious 5-bedroom villa in the prestigious area of Agios Tychonas, Limassol. Perfect for those seeking an elegant living space or an outstanding investment opportunity.... Details
-
Located in the village of Vamos, this stone-built house offers a comfortable living experience close to all local amenities. The property covers 262 m2 on a 600m2 plot and is situated in a quiet... Details











