17773m² Land in Dali, Cyprus No. 41450

ID41450
$ 922 525
Property description
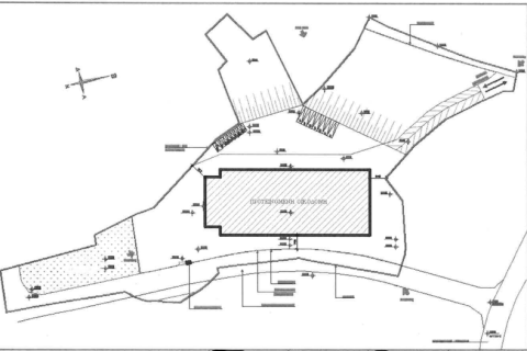
The property is an industrial field, in Dimos Idaliou, in Nicosia, with a total surface area of 17.773sqm (as per the title deed). The field has a relatively irregular shape with a relatively smooth surface and lies north-west by a registered path, which functions as a dirt road. As per the title deed (dated 2018) this property has an 8m right of way. It is located within the Dali industrial area (on the border with the Geri Industrial Area), approximately 320 meters east of Idalio Avenue. The wider area of the property is industrial and consists of various industrial and storage areas, as well as vacant plots.The field falls within the industrial planning zone Bα3 ( Max. coverage 60% , max. density 100%, max. floors 2).
Reference number: 30191
Land type: Field
Plot area: 17773 m2
Plot Type: Industrial
Square meter price: €45 /m2:
Contact the seller
Dali
Land
17773 m²
- m²
- sq. ft
$ 922 525
Price history
04.12.2024
$ 922 525
13.08.2024
$ 1 148 827
Similar offers
-
Reference ID: #SA31836Price details: €799,000 +VATIndustrial field, extending to about 17.773 sq.m.The asset has a flat surface and abuts on a registered pathway with a total frontage of 85m.The asset... Details
-
Industrial field, in Dimos Idaliou, in Nicosia, with a total surface area of 17.773sqm (as per the title deed). The field has a relatively irregular shape with a relatively smooth surface and lies... Details
-
Industrial field, in Dimos Idaliou, in Nicosia, with a total surface area of 17.773sqm (as per the title deed). The field has a relatively irregular shape with a relatively smooth surface and lies... Details
-
Land For Sale In Mae Hia Details








