4 bedrooms Villa in Paphos, Cyprus No. 38002

ID38002
$ 1 868 142
Property description
Luxury beachfront villas located in Chloraka on the outskirts of Paphos Town, on a prime beachfront with panoramic Mediterranean views. The development is off plan, only a short drive to Paphos Harbour and promenade, close to an International Private School and with easy access to all amenities, facilities and services.This project consists of 3, 4 and 5 bedroom villas with high-end fixtures and finishes, and boasts modern-day elegance designed to offer a Mediterranean lifestyle that is second-to-none. All villas have landscaped gardens, BBQ areas and private swimming pools and parking.
Spread over 4 levels, this luxury property comprises spacious open plan living / dining / kitchen area separated by a breakfast bar, 3 en suite bedrooms on the first floor, and in the basement a study / 4th bedroom, gym / playroom, laundry / storage room and a sauna. Roof terrace and elevator complete the property.
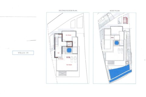
4 BEDROOM VILLA NO.19
Internal area: 288.81 m2
Covered verandas : 85.22 m2
Uncovered verandas: 110.17 m2
Roof terrace: 69.33 m2
Loft roof: 26.85 m2
Price subject to VAT
Contact the seller
Paphos
Villa
4
400.88 m²
- m²
- sq. ft
315 m²
- m²
- sq. ft
$ 1 868 142
Similar offers
















