5 bedrooms Villa in Paphos, Cyprus No. 37946

ID37946
$ 1 483 661
Property description
Developed in a prime, sought-after location in the heart of Pafos' city centre, offering easy access to all of the town's amenities and services, educational institutions, shopping centres, medical centres, restaurants, five star resorts etc.,This exclusive selection of eight unique, luxury villas (off plan) will be built to the highest specifications, featuring modern architectural design and private swimming pools with large, outdoor living space.
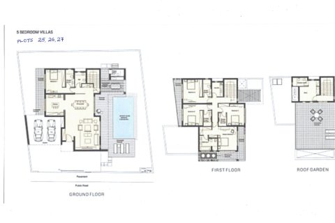
This 2-level property comprises spacious open plan living / dining / kitchen area, one en suite bedroom and guest WC on the ground floor, while on the first floor are four more en suite bedrooms, a laundry room and large balconies.
The villa is offered unfurnished and some of the extras include: roof garden, provision for cable internet and more:
Internal area: 324.75 m2
Covered veranda: 64.84 m2
Uncovered veranda: 81.69 m2
Estimated date of delivery: 22 months from 1st installment
Price subject to VAT
Contact the seller
Paphos
Villa
5
389.59 m²
- m²
- sq. ft
555.5 m²
- m²
- sq. ft
$ 1 483 661
Similar offers
-
Developed in a prime, sought-after location in the heart of Pafos' city centre, offering easy access to all of the town's amenities and services, educational institutions, shopping centres, medical... Details
-
Detached villas located in Aydın Kuşadası have facilities such as an uninterrupted sea view, a large garden, a private pool, a smart home system, electric blinds, and an underfloor heating system. Details













