4 bedrooms Villa in My Loc, Vietnam No. 26286

ID26286
$ 847 828
Property description
Chic Detached Villas Close to the Golf Courses in Rojales Costa BlancaModern detached villas are situated in Rojales. The town is a great living center full of extensive amenities and easy access to the coastline from Alicante to the Mar Menor. It's also close to Murcia, Orihuela and Elche. Rojales is a large town with a traditional Moorish village at its center.
The villas for sale in Rojales Costa Blanca Spain are within walking distance of the golf course, 1.5 km from Rojales town center, 4.5 km from Ciudad Quesada high street, 6.5 km from Guardamar del Segura beach, 7.5 km from Torrevieja and La Mata salt lakes, while having the international airport of Alicante at just 36 km away.
On the spacious 300 sqm plots of these villas, there is a large private pool and gated off-street underground parking area.
Inside the bungalow-style villas with 5 bedrooms; there is a double bedroom with a fitted wardrobe, a bathroom with a walk-in shower, an equipped open-plan kitchen and dining area, and a spacious living area on the ground floor.
Downstairs in the basement, there are four double bedrooms with fitted wardrobes, including two en-suite bathrooms with walk-in showers, and another bathroom with a walk-in shower, as well as a laundry room and garage area.
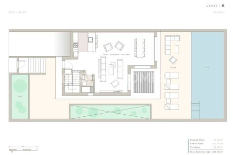
Inside the villas with 4 bedrooms; there is a spacious living area with large French-style windows that overlook the private pool, an equipped open-plan kitchen and dining area, and a bathroom on the ground floor.
Upstairs on the first floor, there is a double bedroom with a fitted wardrobe, an en-suite bathroom with a walk-in shower, and a spacious private balcony/sun terrace.
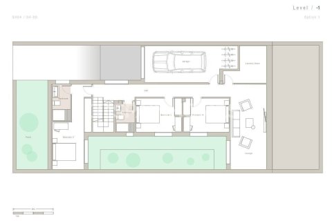
On the basement level, there are three double bedrooms all with fitted wardrobes, one of these has an en-suite bathroom with a walk-in shower, another bathroom with a walk-in shower, a laundry room, and a large second living room. ALC-0618
Inside the villas with 4 bedrooms; there is a spacious living area with large French-style windows that overlook the private pool, an equipped open-plan kitchen and dining area, and a bathroom on the ground floor.
Upstairs on the first floor, there is a double bedroom with a fitted wardrobe, an en-suite bathroom with a walk-in shower, and a spacious private balcony/sun terrace.
On the basement level, there are three double bedrooms all with fitted wardrobes, one of these has an en-suite bathroom with a walk-in shower, another bathroom with a walk-in shower, a laundry room, and a large second living room. ALC-0618
Features
Doors and windows
- Prepared spots to install blinds
Internet and TV
- Satellite television
Contact the seller
My Loc
Villa
4
245 m²
- m²
- sq. ft
II quarter, 2025
$ 847 828
Price history
$ 847 828
$ 842 591
$ 812 333
$ 732 030
Similar offers
-
For Sale Detached house 245 m² in Loutraki Details
-
Grato Homes is an exceptional villa development located in the prestigious High Sea Caves area in Paphos. Situated in a prime location, Grato Homes comprises 13 brand new villas designed to meet the... Details
-
2 villa 4 bedroom 5 bathroom swimming pool sea vew roof garden 2 parking cover 245 sgm building area land area 685 sgm... Details




















