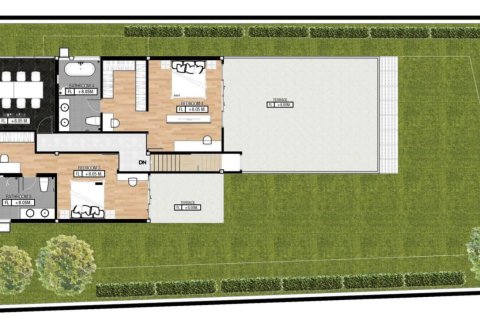
5 bedrooms Villa in Ko Kaeo, Thailand No. 1663

ID1663
$ 834 429
Contact the seller
Ko Kaeo
Villa
5
616 m²
- m²
- sq. ft
$ 834 429
Similar offers
-
Alisha Seaview - 3BR Pool Villa (Large Plot) Details













