2 bedrooms Apartment in Istanbul, Turkey No. 11467

ID11467
$ 269 000
Property description
Spacious Apartments with Balcony 2 km from Metro in İstanbulKüçükçekmece, the easiest region to access in İstanbul, is rapidly growing due to investments. The region is suitable for families to live in and offers easy access to a great variety of highways and transportation routes.
Apartments in Küçükçekmece, İstanbul for sale are located 2 km from the metro station, 3 km from the lakeside, 5 km from the Mall of İstanbul shopping center, 26 km from the Eurasia Tunnel, 28 km from 15 July Martyrs Bridge and 36 km from the İstanbul International Airport.
Built on 9.000 m² land area the project consists of 2 blocks. The complex features security cameras, 24/7 security services, an indoor parking lot, a lift, a communal garden, an open-air cinema, a gym, a sauna and a Turkish bath.
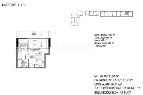
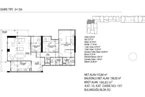
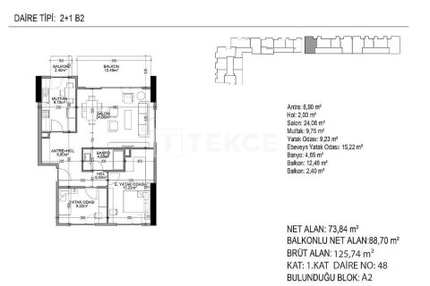
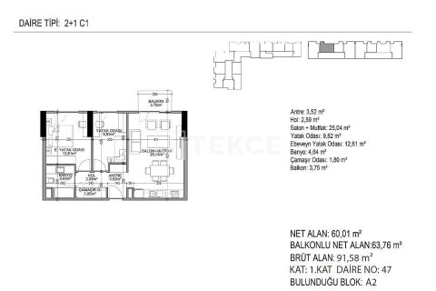
Apartments with different numbers of bedroom options include a living room, separate kitchen or open plan kitchen, laundry room, bathroom, and balcony. Apartments with 2 or 3 bedrooms include en-suite bathrooms.
Apartments are equipped with steel doors, PVC windows, laminate and ceramic flooring, a built-in set, a dishwasher, a central satellite system, an underfloor heating system, a smart home system and a shower cabin. IST-00994
Contact the seller
Istanbul
Apartment
2
93 m²
- m²
- sq. ft
IV quarter, 2023
$ 269 000
Similar offers
-
New Building Property with Balcony & Heated Floor in Istanbul Kucukcekmece – Modern Comfort and Stylish Design Details




























