3 chambres Appartement à Istanbul, Turkey No. 11174

ID11174
$ 1 590 000
Contacter le vendeur
Istanbul
Appartement
3
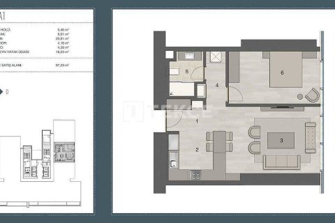
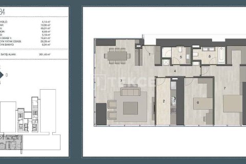
208 m²
- m²
- pi2
IV quartier, 2016
$ 1 590 000
Offres similaires
-
Un appartement à couper le souffle Détails































